
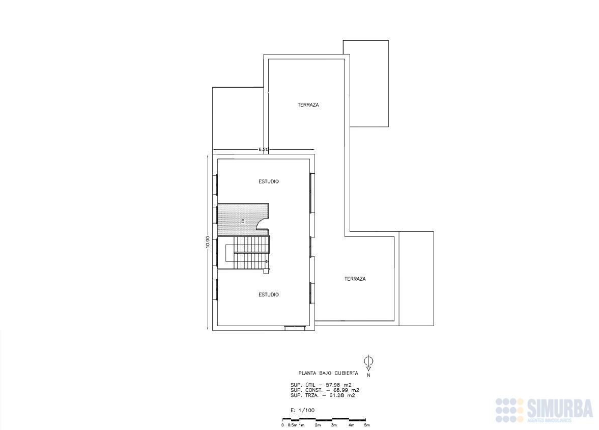
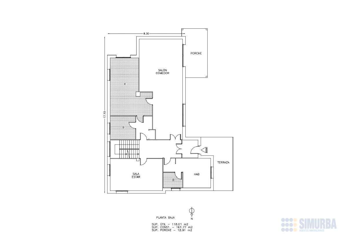
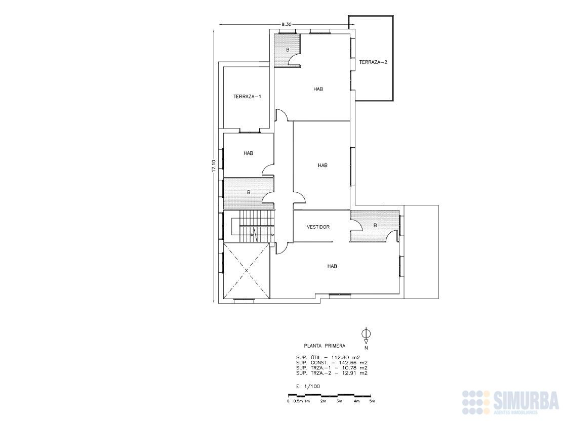
Vivienda unifamiliar aislada en estado de construcción paralizada en Arenys de Mar, Barcelona. Casa distribuida en cuatro plantas, una de ellas sótano destinada a garaje, y tres plantas sobre rasante con uso residencial. La planta baja se distribuye en salón-comedor, sala de estar, una habitación, cocina independiente, dos baños, terraza y porche. La primera planta alberga cuatro habitaciones, tres baños (uno en suite) y terraza; la planta superior cuenta con una estancia tipo estudio, un baño y una amplia terraza con vistas. Todas las plantas están conectadas mediante escalera interior. Ubicada en la urbanización Les Carolines, en Arenys de Mar (Barcelona), en una zona elevada y residencial de viviendas unifamiliares aisladas, con vistas panorámicas y a tan solo 5 minutos a pie de la playa de Cavalló. Entorno bien comunicado, próximo a servicios, comercios, varias líneas de autobús y estación Renfe Canet de Mar, con fácil acceso a las carreteras C-31 y C-32.
Avinguda del Mediterrani - 08350 ARENYS DE MAR
Referencia
5450
